Lakovací a sušiaci box, s inštalačným podlahovým rámom - Golemtech LX02
Lakovacia a sušiaca kabína, s inštalačným podlahovým rámom – Golemtech LX02
Moderná kombinácia lakovacej a sušiacej kabíny umožnuje pohodlné lakovanie v bezprašnom prostredí vďaka perfektnej výmene vzduchu cez podlahové, vstupné a stropné filtre. Box ďalej umožňuje lakovanie pri stálej zvolenej teplote s ohrevom vzduchu a sušenie laku pri vysokej teplote (60-80 stupňov) vďaka vysoko kvalitnému talianskemu horáku od výrobcu Reillo.
Úspornú prevádzku zaisťuje rekuperačný systém pri prevádzke s ohrevom vzduchu a použité LED osvetlenie.
Lakovací kabín a všetky jej komponenty spĺňajú najnovšie technické predpisy a normy potrebné na prevádzku v Českej republike i celej Európe, na základe certifikácie vydanej českou skúšobňou.
Na výber je možnosť ľavého, alebo pravého prevedenia. Tzn. strojovňa a bočné vstupné vráta môžu byť umiestnené z ľavej, alebo pravej strany lakovacieho boxu.
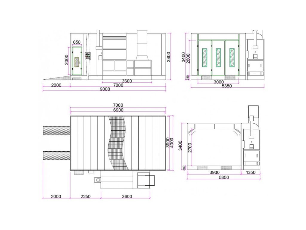
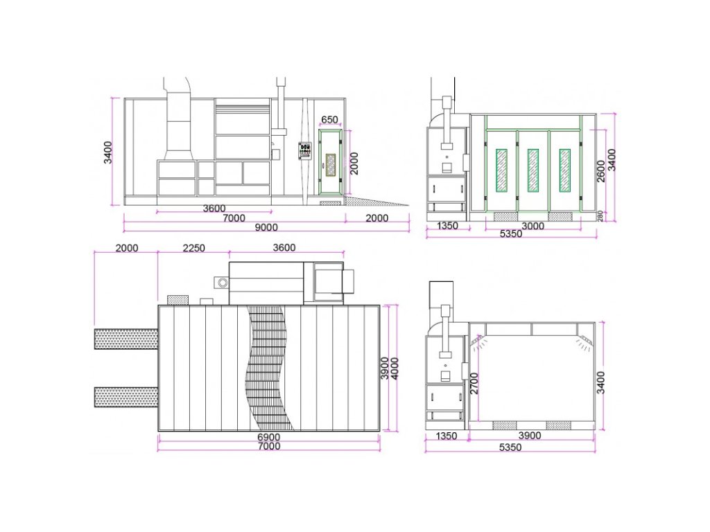
KONŠTRUKCIA – Lakovacia kabína je tvorená sendvičovými izolačnými panelmi o sile 50 mm, ktoré sú použité na steny i strechu a pozinkovanými lakovanými oceľovými rámami. Lakovacia kabína sa inštaluje na podlahu, v ktorej má zákazník pripravené otvory na vedenie odťahu vzduchu. Tie sú následne osadené dvoma radmi roštov s filtrami. Vnútorné rozmery 6900x3900x2700mm.
DVERE – hlavné vjazdové brány sú trojdielne s oknami z bezpečnostného skla a bezrámovým prevedením o veľkosti 3000 x 2600 mm. Bočné vstupné brány rovnakej konštrukcie majú veľkosť 650 x 2000 mm a vybavené sú pretlakovým otvorením.
OSVETLENIE – celý lakovací box osvetľujú LED trubice s výkonom 16w/kus v počte 32 stropných a 32 bočných trubíc.
FILTRÁCIA - samo zhášacie prevedenie triedy F1 podľa DIN 53438. 1 vstupný predfilter na prívode čerstvého vzduchu, 6ks stropných filtrov umiestnených v oceľových rámoch a PAINT-STOP filtre umiestnené v podlahe pod rošty. Konštrukcia umiestnenia všetkých filtrov umožňuje jednoduchú výmenu a použitie filtračného média v metráži predávaného v roliach.
VÝMENA VZDUCHU – prívod čerstvého vzduchu je zaistený dvoma ventilátormi o kapacite 25000 m3/hod s príkonmi 2x 4kw. Odsávanie zaisťuje samostatný ventilátor s kapacitou 18000 m3/hod a príkonom 7,5 kW.
TEPELNÝ GENERÁTOR – pre funkciu sušiaceho boxu je kabína vybavená talianskym naftovým horákom Reillo G20 s výkonom 200000 Kcal/hod s tepelným výmenníkom z nerezovej ocele. Pomocou rekuperačnej klapky sa v režime vykurovania prepne kabína do stavu, kedy využíva už predhriaty odsatý prefiltrovaný vzduch a mieša ho v malom pomere s čerstvým vzduchom.
OVLÁDANIE – možnosť využitia troch režimov. Lakovanie bez príhrevu vzduchu, lakovanie pri nastavenej teplote a sušení s možnosťou nastavenia teploty a času s automatickým vypnutím.
Popis produktu nie je dostupný
Dodatočné parametre
| Kategória: | Lakovacie boxy |
|---|---|
| EAN: | 2990381075187 |
Diskusia
Buďte prvý, kto napíše príspevok k tejto položke.
Spoločnosť Golemtech ponúka kvalitné stroje za výhodné ceny, ale aj spoľahlivého partnera pre vaše dlhodobo úspešné podnikanie. Ako jeden z najsilnejších dodávateľov zariadení na vybavenie autoservisov a vybavenia pneuservisov, poskytujeme našim zákazníkom zázemie silnej spoločnosti, kvalitný záručný aj pozáručný servis a odbornú technickú podporu.
Pred rokmi sme začali s vlastným náročným vývojom a úpravami podľa požiadaviek zákazníkov a výrobky neustále zdokonaľujeme za použitia moderných 3D konštrukčných programov pre modelovanie a simuláciu.
Cieľom vývoja je maximálne zjednodušenie konštrukcie strojov na dosiahnutie minimálnej možnej poruchovosti funkčných celkov a tým znižovanie nákladov na údržbu a prevádzku strojov dlhé roky.
Naša spoločnosť začala dovozom výrobkov na priamu objednávku zákazníkov v roku 2002. Neboli sme však vždy spokojní s prevedením a kvalitou výrobkov a preto sme sa rozhodli vydať vlastnou cestou a ako jedni z prvých na českom trhu začať budovať vlastnú značku výrobkov radu Golemtech s presne definovanými hodnotami spoľahlivosti a vysokej úžitkovej hodnoty a tým vyniknúť na slovenskom trhu.

